Le Pigeonnier, the farmhouse in the grounds - Saint-Hélen
Experience France at its finest: choose from stylish hotels, cozy apartments, spacious holiday homes in the most popular regions, including Paris, French Riviera, Provence. Easily secure cheap flights to Paris Charles de Gaulle, Nice Côte d’Azur, Marseille Provence, Lyon-Saint Exupéry. Explore iconic destinations such as the Eiffel Tower, Louvre Museum, Notre-Dame Cathedral, Cannes, Corsica. Your journey begins with smart choices and verified travel insights for the best trip experiences. Book!
Le Pigeonnier, the farmhouse in the grounds
Saint-Hélen 1 Rue du Clos d’épine, 22100 St Helen, Brittany.
WiFi
Pool
Spa/wellness
Parking
10.0/10
WiFi
Pool
Spa/wellness
Parking
10.0/10
Situated in Saint-Hélen, Le Pigeonnier, the farmhouse in the grounds features accommodation with private pool, free WiFi and free private parking for guests who drive. A hot tub is available for guests. The property is non-smoking and is located 10 km from Dinan Train Station.
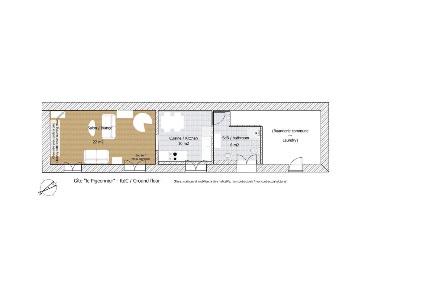
The spacious holiday home has 2 bedrooms, a fully equipped kitchen with a dishwasher, and 2 bathrooms. A TV is available. The accommodation offers a fireplace.
Solidor Tower is 29 km from the holiday home, while Palais du Grand Large is 30 km from the property. Rennes–Saint-Jacques Airport is 54 km away.
The hotel day starts from hour 16:00 and ends at 10:00.
This property will not accommodate hen, stag or similar parties.
Holiday Home. This holiday homes special features are the private pool and the fireplace. This spacious holiday home features 2 bedrooms, a kitchen and 2 bathrooms with a hairdryer. Guests will find a stovetop, a refrigerator, a dishwasher and kitchenware in the well-equipped kitchen. The holiday home also comes with a barbecue. The holiday home features a TV, a tea and coffee maker, a high chair for children and heating. The unit has 3 beds.
Outdoor pool
WiFi
Parking
Street parking
WiFi available in all areas
Smoke alarms
Tennis courtoffsite
Heating
Non-smoking throughout
Internet services
Fire extinguishers
Private parking
Designated smoking area
Swimming pool
Parking on site
Outdoor pool (seasonal)
Hot tub/Jacuzzi
BBQ facilities
Free parking
Free WiFi
